HOLZ-MODULHAUS
KALMES 50

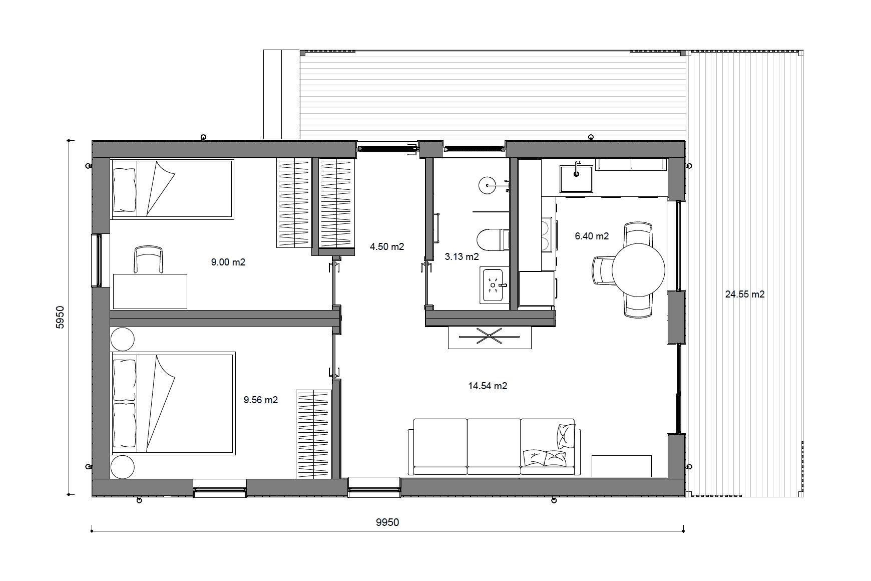
Bebaute Fläche: 47 m²

Schlafzimmer: 2

Badezimmer: 1

Terrasse: nach Vereinbarung

Dieses kompakte KALMES Modulhaus bietet hohe Funktionalität, Komfort und durchdachtes Design für den Alltag. Die optional verfügbare erweiterte Terrasse verbindet den Innenraum harmonisch mit der Natur und macht das Haus zu einem idealen städtischen Rückzugsort oder zu einem nachhaltigen, pflegeleichten Ort der Ruhe.
Energieeffizient, vollständig ausgestattet und bezugsfertig – öffnen Sie einfach die Tür und fühlen Sie sich sofort zu Hause.


ARCHITEKTONISCHE OPTIONEN

Die Kalmes Häuser sind in zwei Fassadenvarianten erhältlich – helle oder dunkle Außenfassade – sodass sich das Haus harmonisch in die Umgebung einfügt und gleichzeitig den persönlichen Stil widerspiegelt.

Die Projekte sind außerdem mit zwei Dachtypen verfügbar:

Flachdach – für eine moderne, minimalistische Architektur
Satteldach – für eine klassischere Silhouette und ein traditionelles Erscheinungsbild


AUSBAUSTUFEN IM INNENBEREICH

Das Haus kann an den gewünschten Fertigstellungsgrad und das Budget angepasst werden, indem eine von drei Innenausbauvarianten gewählt wird:

Basic

  • Keine Innenausstattung

  • Keine sanitären Anlagen oder Ausstattungen enthalten

  • Ideal für Bauherren, die den Innenausbau individuell gestalten möchten

Standard

  • Forestia-Paneele für Wände und Decken

  • Laminat- oder Vinylboden

  • Sanitäre Anlagen und Ausstattung inklusive

  • Bereit für komfortables tägliches Wohnen

Premium

  • Micro-CLT oder Forestia-Paneele für Wände und Decken

  • Parkett- oder Vinylboden

  • Sanitäre Anlagen und Ausstattung inklusive

  • Höheres ästhetisches Niveau und hochwertige Materialien


Weitere Informationen:
kalmes.eu

Interessiert an diesem Haus?
Kontaktieren Sie uns – wir beantworten gerne alle Ihre Fragen.

GEFÄLLT IHNEN DIESES PROJEKT?
KONTAKTIEREN SIE UNS NOCH HEUTE!

WEITERE MODULHAUS-PROJEKTE ANSEHEN

Fertige Modulhausprojekte – wir bieten durchdachte Lösungen für eine schnelle und hochwertige Bauweise.

Wählen Sie ein fertiges Modell, das Planungszeit spart, Produktionskosten reduziert und den Bauprozess vereinfacht.