KARKASA PANEĻU MĀJA
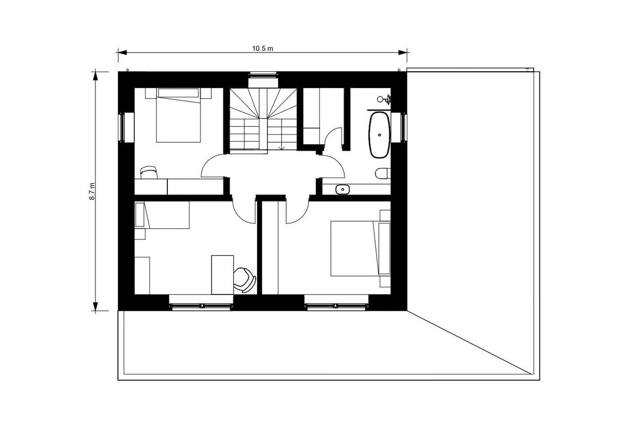
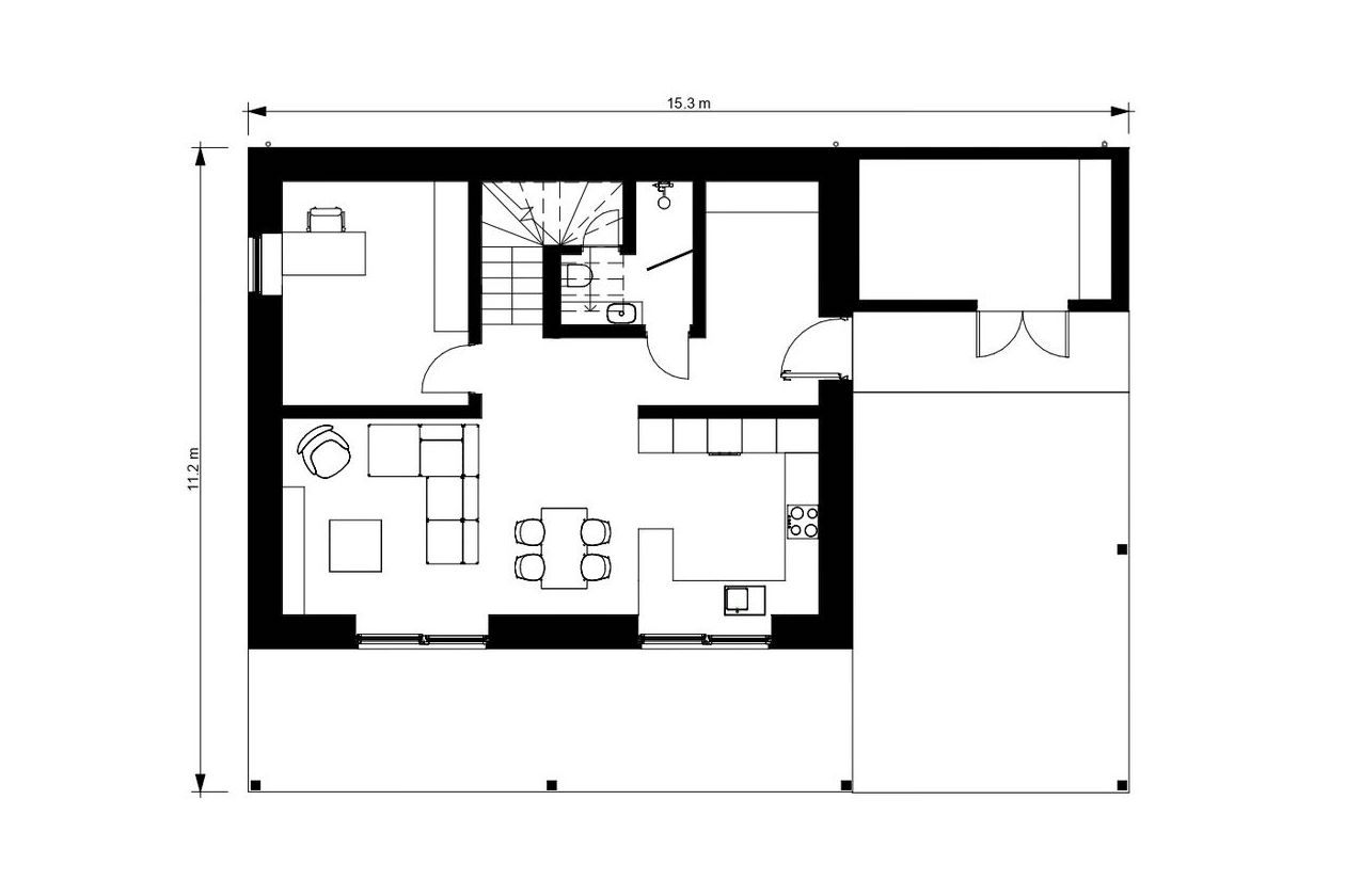
MAGNUS 130 m²

Dzīvojamā platība:             130 m²

Guļamistabas:                               4

Vannasistabas:                              2

Magnus – divstāvu dzīvojamās mājas projekts, kas lieliski piemērots jaunai 4-5 cilvēku ģimenei.

Rūpnīcas komplekts – ārsienas, starpsienas, stapstāvu un jumta konstrukcija bez iekšējās un ārējās apdares.

Komplektā iekļauts terases un autonojumes jumts un āra noliktava.

Vairāk informācijas pie mūsu speciālistiem.

Interesē šī māja?
Sazinies ar mums, un mēs ar prieku atbildēsim uz visiem jautājumiem.

IEPATIKĀS ŠIS PROJEKTS?
SAZINIES AR MUMS JAU ŠODIEN!

APSKATI ARĪ CITUS MĀJU PROJEKTUS

Gatavi māju projekti – piedāvājam pārdomātus risinājumus ātrai un kvalitatīvai būvniecībai.
Izvēlies gatavu modeli, kas ietaupa projektēšanas laiku, ražošanas izmaksas un padara būvniecību vienkāršāku.

Sazinies ar mums, zvanot +371 20799777, rakstot prefab@cmb.lv, vai aizpildot saziņas formu zemāk.