KOKA MODUĻU MĀJA
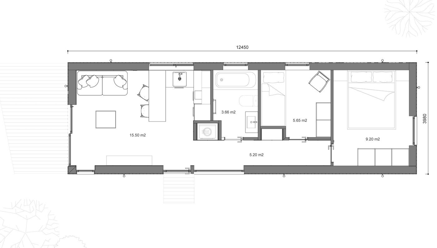
STĀRĶIS 39 m²

Platība:                                     39m²

Guļamistabas:                                 2

Vannasistaba:                                  1

Terase:                    pēc vienošanās

Maza māja – lielas iespējas

Rūpnieciski ražota koka moduļa māja. 

Ārsienas biezums 280 mm un koka karkasa starpsienas biezums 120 mm. 

Jumta konstrukcijas biezums 265 mm un grīdas konstrukcijas biezums 255 mm. 

Apdares materiāli – sienas un griestu apdares paneļi, lamināta grīdas segums. 

Jumts – skārda lokšņveida jumta segums. 

Fasāde – smalki zāģēti apdares dēļi. 

Mēbeles un tehnika – virtuves mēbeles ar tehniku un vannas istabas aprīkojums. 

Logi un ārdurvis – PVC Rehau SYNEGO AD trīs stiklu paketes, krāsa – antracīts ārpusē/ balta iekšpusē

Interesē šī māja?
Sazinies ar mums, un mēs ar prieku atbildēsim uz visiem jautājumiem.

IEPATIKĀS ŠIS PROJEKTS?
SAZINIES AR MUMS JAU ŠODIEN!

APSKATI ARĪ CITUS MODUĻU MĀJU PROJEKTUS

Gatavi moduļu māju projekti – piedāvājam pārdomātus risinājumus ātrai un kvalitatīvai būvniecībai.
Izvēlies gatavu modeli, kas ietaupa projektēšanas laiku, ražošanas izmaksas un padara būvniecību vienkāršāku.

Sazinies ar mums, zvanot +371 20799777, rakstot prefab@cmb.lv, vai aizpildot saziņas formu zemāk.