HOLZ-MODULHAUS
KALMES 35

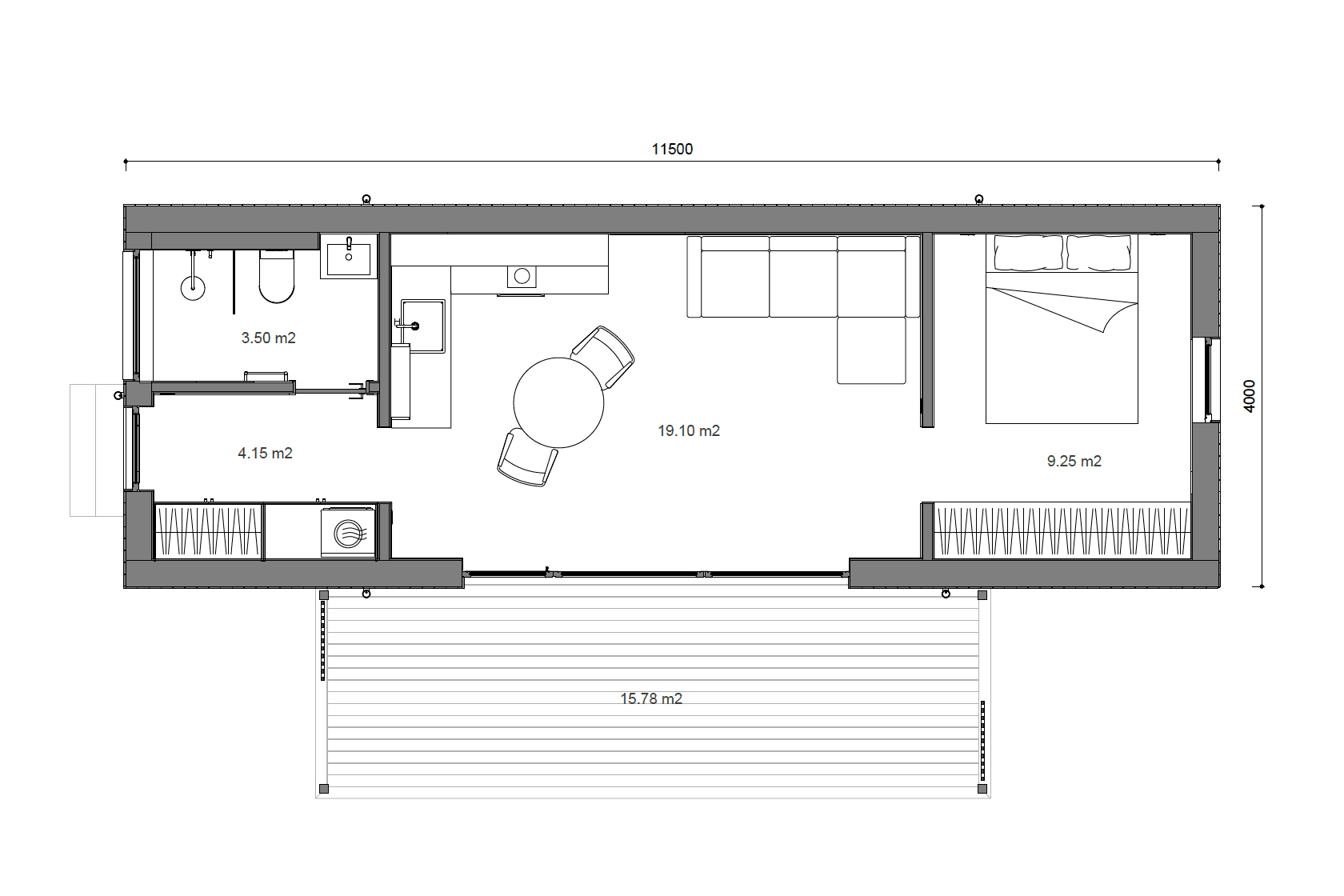
Bebaute Fläche: 36 m²

Schlafzimmer: 1

Badezimmer: 1

Terrasse: nach Vereinbarung

Dieses kompakte KALMES 35 Haus vereint Funktionalität und Design auf kleiner Fläche. Der Grundriss ist durchdacht gestaltet und umfasst ein Schlafzimmer sowie einen offenen Wohnbereich. Gefertigt aus natürlichen Materialien, ausgestattet mit dreifach verglasten Fenstern sowie modernen Heizungs- und Lüftungssystemen, ist dieses Modul energieeffizient und vollständig für den Alltag ausgestattet. Treten Sie ein und fühlen Sie sich sofort zu Hause.


ARCHITEKTONISCHE OPTIONEN

Die Kalmes Häuser sind in zwei Fassadenvarianten erhältlich – helle oder dunkle Außenfassade – sodass sich das Haus harmonisch in die Umgebung einfügt und den persönlichen Stil widerspiegelt.

Die Projekte sind außerdem mit zwei Dachtypen verfügbar:

Flachdach – für eine moderne, minimalistische Architektur
Satteldach – für eine klassischere Silhouette und ein traditionelles Erscheinungsbild


AUSBAUSTUFEN IM INNENBEREICH

Das Haus kann an den gewünschten Fertigstellungsgrad und das Budget angepasst werden, indem eine von drei Innenausbauvarianten gewählt wird:

Basic

  • Keine Innenausstattung

  • Keine sanitären Anlagen oder Ausstattungen enthalten

  • Ideal für Bauherren, die den Innenausbau individuell gestalten möchten

Standard

  • Forestia-Paneele für Wände und Decken

  • Laminat- oder Vinylboden

  • Sanitäre Anlagen und Ausstattung inklusive

  • Bereit für komfortables tägliches Wohnen

Premium

  • Micro-CLT oder Forestia-Paneele für Wände und Decken

  • Parkett- oder Vinylboden

  • Sanitäre Anlagen und Ausstattung inklusive

  • Höheres ästhetisches Niveau und hochwertige Materialien


Weitere Informationen:
kalmes.eu

Interessiert an diesem Haus?
Kontaktieren Sie uns – wir beantworten gerne alle Ihre Fragen

GEFÄLLT IHNEN DIESES PROJEKT?
KONTAKTIEREN SIE UNS NOCH HEUTE!

WEITERE MODULHAUS-PROJEKTE ANSEHEN

Fertige Modulhausprojekte – wir bieten durchdachte Lösungen für eine schnelle und hochwertige Bauweise.

Wählen Sie ein fertiges Modell, das Planungszeit spart, Produktionskosten reduziert und den Bauprozess vereinfacht.