KOKA MODUĻU MĀJA
KALMES 35

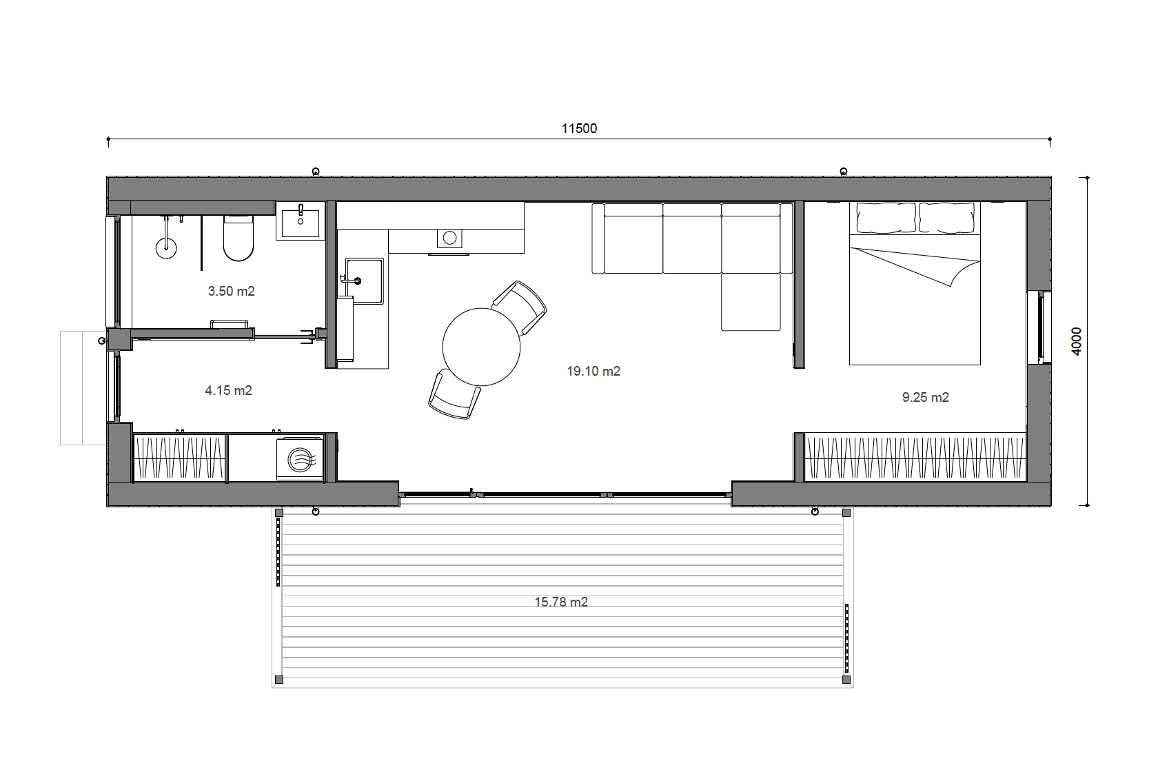
Dzīvojamā platība:                36 m²

Guļamistabas:                                 1

Vannasistaba:                                 1

Terase:                   pēc vienošanās

Šī kompaktā KALMES 35 māja piedāvā funkcionalitāti un dizainu nelielā platībā. Pārdomāti izplānota ar vienu guļamistabu un atvērtām dzīvojamām zonām. Modulis izgatavots no dabīgiem materiāliem, ar trīskārša stikla logiem un modernām apkures un ventilācijas sistēmām, tas ir energoefektīvs un pilnībā aprīkots ikdienas dzīvei. Vienkārši ieej iekšā un uzreiz jūties kā mājās.


ARHITEKTŪRAS VARIANTI
Kalmes mājas pieejamas ar diviem ārējās apdares toņiem – gaišu vai tumšu fasādi, ļaujot pielāgot ēkas raksturu apkārtējai videi un personīgajai gaumei.

Projekti pieejami arī ar diviem dažādiem jumta veidiem:

  • Plakans jumts – modernai, lakoniskai arhitektūrai
  • Divslīpju jumts – klasiskākam siluetam un tradicionālai videi


IEKŠĒJĀS APDARES LĪMEŅI
Māju iespējams pielāgot vēlamajam gatavības līmenim un budžetam, izvēloties vienu no trim iekšējās apdares risinājumiem:

Basic

  • Bez iekšējās apdares
  • Bez santehnikas un iekārtām
  • Piemērots klientiem, kuri vēlas apdari realizēt individuāli


Standarta

  • Forestia paneļi sienām un griestiem
  • Lamināta / vinila grīdas segums
  • Santehnika un iekārtas iekļautas komplektācijā
  • Gatavs komfortablai ikdienas dzīvošanai


Premium

  • Mikro CLT / Forestia paneļi sienām un griestiem
  • Parketa / vinila grīdas segums
  • Santehnika un iekārtas iekļautas komplektācijā
  • Paaugstināts estētikas un materiālu kvalitātes līmenis


Papildus informācija Kalmes mājaslapā: kalmes.eu

Interesē šī māja?
Sazinies ar mums, un mēs ar prieku atbildēsim uz visiem jautājumiem.

IEPATIKĀS ŠIS PROJEKTS?
SAZINIES AR MUMS JAU ŠODIEN!

APSKATI ARĪ CITUS MODUĻU MĀJU PROJEKTUS

Gatavi moduļu māju projekti – piedāvājam pārdomātus risinājumus ātrai un kvalitatīvai būvniecībai.
Izvēlies gatavu modeli, kas ietaupa projektēšanas laiku, ražošanas izmaksas un padara būvniecību vienkāršāku.